




















Wszystkie zdjęcia (21)
Nowoczesny domek z antresolą Adam III 7m x 5m
Warianty produktu
Dodatkowe opcje
Tagi:
Opis produktu
MONTAŻ GRATIS!
PODŁOGA I OKIENNICE W CENIE!
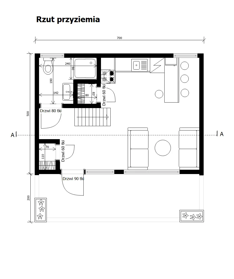
Domek drewniany Adam III to nowoczesna konstrukcja drewniana o wymiarach 7m x 5m, która składa się na pełne wykorzystanie 35 metrów kwadratowych powierzchni możliwej do budowy bez pozwolenia. Domek Adam III charakteryzuje jednak niecodzienny kształt, którego charakterystycznymi punktami jest wysunięty daleko okap dachu na froncie, a także bardzo duże przeszklenia gwarantujące doskonałe doświetlenie przestronnego wnętrza domku. Wewnątrz z kolei czeka salon, wydzielone pomieszczenie przeznaczone np. na sypialnię, a także łazienka i dwa schowki. Antresola z kolei to dodatkowa powierzchnia do zagospodarowania według własnego uznania. Domek w stanie surowym zamkniętym, z możliwością adaptacji do formy wielosezonowej, całorocznej.
Możliwość realizacji w wariancie całorocznym – do postawienia zarówno na działce rekreacyjnej, jak i budowlanej.
Unikalne cechy
- Możliwość pełnej personalizacji budynku — jako producent możemy zmienić wymiary, kąt dachu, układ wnętrz, rodzaj stolarki, sposób ocieplenia oraz zakres instalacji elektrycznej, hydraulicznej i ogrzewania, przygotowując domek również w standardzie całorocznym lub mieszkalnym WT2021.
- Transport i montaż na terenie całej Polski
Realizujemy dostawę i kompletny montaż budynku w każdym regionie kraju (wycena indywidualna) - Gwarancja niezmiennej ceny po podpisaniu umowy – pełna ochrona przed podwyżkami materiałów i kosztów robocizny.
- Pisemna, aż 15-letnia gwarancja na konstrukcję budynku – jedna z najdłuższych na rynku, potwierdzona dokumentem odbiorczym.
- Gwarancja terminu rozpoczęcia montażu – wpisana do umowy, co eliminuje opóźnienia typowe dla konkurencyjnych firm.
- Dedykowany doradca techniczny dla każdego inwestora – osobiste wsparcie od pierwszej rozmowy do zakończenia budowy.
- Prewencyjny system zabezpieczenia placu budowy W standardzie oferujemy atrapę kamery CCTV oraz tabliczkę informującą o monitoringu , co skutecznie odstrasza osoby postronne i minimalizuje ryzyko niepożądanych zdarzeń na działce.
- Serwis posprzedażowy – szybka reakcja, gdy inwestor potrzebuje pomocy po odbiorze budynku.
- Stylowe okiennice w standardzie – dodają charakteru budynkowi, poprawiają izolację i zwiększają jego bezpieczeństwo
- Malowanie elewacji w wybranym kolorze — pełna personalizacja wyglądu budynku zgodnie z preferencjami inwestora.
Cena 110 500,00 zł obejmuje
- Ściany zewnętrzne prefabrykowane, wykończone od zewnątrz deską elewacyjną, a wewnątrz bez wykończenia
- Montaż zewnętrznej stolarki okiennej i drzwiowej
- Ściany działowe prefabrykowane, i jednostronnie wykończone boazerią.
- Podłoga w standardzie deweloperskim(technicznym) pomalowana na ten sam kolor co elewacja.
- Wykonanie kompletnej konstrukcji dachowej wraz z pełnym deskowaniem i pokryciem gontem bitumicznym marki IKO
- Schodki młynarskie
- Dwukrotne malowanie preparatem marki Drewnochron
- Okiennice - nie dotyczy okien fix oraz okien tarasowych
Po stronie inwestora pozostaje:
- Przygotowanie fundamentu przed montażem
- Izolacja przeciwwilgociowa na całej powierzchni fundamentu
- Doprowadzenie przyłączy zewnętrznych – prąd, woda, kanalizacja
Specyfikacja techniczna
| Ilość łazienek | 1 |
| Ilość sypialni | 1 |
| Powierzchnia tarasu | 14m2 |
| Powierzchnia domku | 35 m² |
| antresola | Tak |
Dodatkowe informacje
| Standard wykonania | stan surowy zamknięty |
| Technologia wykonania | szkieletowa kanadyjska |
| Gatunek drewna | Sosna i świerk |
| Standard drewna | Konstrukcyjne klasy C24 suszone komorowo, kluczowe elementy (słupy tarasowe, wieniec) wykonane z drewna KVH zapobiegającego procesowi pękania i odkształcania |
| Wymiar domku | 7m x 5m (35 m2, mierzone po obrysie jego podstawy) |
| Powierzchnia zabudowy | 35 m2 |
| Wysokość całkowita | 500 cm |
| Wysokość ścian na parterze | 229 cm |
| Wysokość na antresoli | 190cm w kalenicy |
| Parter | Otwarta przestrzeń 5m x 7m m z wydzieloną łazienką 2m x 2m oraz schowki przy wejściu i w kuchni |
| Rodzaj poddasza | Antresola 16,6 m2 |
| Taras | 7m x 2m |
| Stolarka | Okna PCV dwuszybowe, drzwi stalowe - ocieplane |
| Szkielet ścian | Kantówka 10cm x 4cm – nieocieplony |
| Rodzaj deskowania | Pióro-wpust |
| Grubość desek na dachu/elewacji/podłodze | 20mm |
| Wykończenie wewnętrzne ścian | Brak wykończenia, widoczny szkielet konstrukcyjny |
| Malowanie i impregnacja | 2 warstwy – bezbarwny podkład + preparat marki Drewnochron w wybranym kolorze – wzornik „kolory dla drewna STANDARD” |
| Pokrycie dachu | deskowanie, membrana dachowa oraz gont bitumiczny w wybranym kolorze – wzornik „pokrycia dachu STANDARD”) |
| Grubość ściany w stanie surowym zamkniętym | 12cm |
| Grubość ściany w dodatkowo płatnym standardzie ocieplonym | 13,5cm |
| Grubość ściany w dodatkowo płatnym standardzie deweloperskim (ocieplonym i wyposażonym w instalację elektryczną i/lub hydrauliczną) | 17,3cm |
Dodatkowe opcje i możliwości
Wzorniki kolorów i materiałów

Wiśnia japońska
Drewnochron Impregnat Extra

Tik
Drewnochron Impregnat Extra

Palisander średni
Drewnochron Impregnat Extra

Orzech ciemny
Drewnochron Impregnat Extra

Dąb
Drewnochron Impregnat Extra

Cedr
Drewnochron Impregnat Extra
Opcje produktu
Ocieplenie podłogi - wełna 10cm
Ocieplenie ścian - wełna 10cm oraz wykończenia wewnątrz boazerią
Ocieplenie dachu - wełna 10cm oraz wykończenia wewnątrz boazerią
Wykończenie ścian wewnątrz boazerią bez ocieplenia
Ścianka kolankowa 0,5m
Ocieplenie ścianki kolankowej 0,5m - wełna 10 cm oraz wykończenie wewnątrz boazerią
Pełne poddasze
Rynny wraz z rurami spustowymi (brązowe)
Pokrycie dachu blachodachówką falistą
Komin modułowy
Piecyk wolnostojący typu koza
Instalacja grzewcza – grzejniki elektryczne
Instalacja elektryczna wraz z gniazdkami - 25 punktów elektrycznych
Instalacja elektryczna wraz z gniazdkami - 30 punktów elektrycznych
Instalacja elektryczna wraz z gniazdkami - 40 punktów elektrycznych
Instalacja hydrauliczna wewnętrzna wraz z bojlerem
Magazynek na narzędzia dostawiany do ściany domku w rozmiarze 3m x 1m
Magazynek na narzędzia dostawiany do ściany domku w rozmiarze 3m x 1,5m
Magazynek dostawiany do ściany domku w rozmiarze 3m x 1m, podzielony na schowek oraz WC po 1,5m x 1m każdy
Rynny do magazynku dostawianego do ściany domku (brązowe)
Drewutnia dostawiana do ściany domku w rozmiarze 3x1m
WC wolnostojące - klasyczna Sławojka
Dodatkowe jednoskrzydłowe okno drewniane
Dodatkowe dwuskrzydłowe okno drewniane
Dodatkowe jednoskrzydłowe okno PCV (obustronnie białe)
Dodatkowe dwuskrzydłowe okno PCV (obustronnie białe)
Dodatkowe drzwi drewniane
Półka pod donice na kwiaty
Ogrzewanie podłogowe foliami grzewczymi
Przedłużenie gwarancji do 36 miesięcy
o szczegóły pytaj handlowców
Przedłużenie gwarancji do 48 miesięcy
o szczegóły pytaj handlowców
Skontaktuj się z nami w sprawie opcji
Nasze produkty można dostosować do indywidualnych potrzeb. Skontaktuj się z naszymi doradcami, aby omówić dostępne opcje i uzyskać wycenę.
Realizacje tego produktu
Masz pytania?
Skontaktuj się z nami!
Podobne produkty

Nowoczesny drewniany domek z antresolą Adam IV 5,9m x 5,9m

Domek bez pozwolenia Julianek 6x5,5m z tarasem

Leon III 6m x 5,8m + taras 6m x 2m

Domek typu brda Oskar
Co mówią o nas klienci?
Blog
Poznaj najważniejsze informacje o drewnie, pielęgnacji i bezpieczeństwie naszych drewnianych domków od Drewnolandi




