







































Wszystkie zdjęcia (40)
Domek mieszkalny całoroczny CRA10 PLUS - WT 2021 – 35 m²
Warianty produktu
Dodatkowe opcje
Tagi:
Opis produktu
Dom całoroczny CRA10 PLUS to solidna konstrukcja w technologii kanadyjskiej szkieletowej z suszonego komorowego drewna świerkowego i sosnowego klasy C24. Dom spełnia wszystkie wymogi standardu WT2021, jest więc możliwy do użytkowania zarówno okresowego jak i całorocznego. W wyjściowym standardzie cenowym przewidzieliśmy komplet rozwiązań niezbędnych do szybkiego wprowadzenia się – ocieplenia o grubości 20 centymetrów, instalację elektryczną, hydrauliczną i grzewczą, okna PCV, ocieplane drzwi wejściowe, a także transport i montaż na terenie całego kraju. Dom CRA10 PLUS to niedroga alternatywa dla klasycznych budynków murowanych, możliwa do błyskawicznego postawienia w dowolnym miejscu, gotowa do zamieszkania zaraz po odebraniu kluczy do drzwi wejściowych.
Unikalne cechy
- Transport i montaż na terenie całego kraju
- Komplet mediów - elektryka, hydraulika, ogrzewanie
- Izolacja termiczna (ocieplenia) całego domku, w tym ścian działowych wewnątrz
- Przygotowywany indywidualny rysunek fundamentu, podejść elektrycznych i wodnych a także odpływów kanalizacyjnych
- Prewencyjny system zabezpieczenia - atrapa kamery CCTV oraz tabliczka ostrzegawcza
- Indywidualny doradca techniczny przydzielony do każdego Inwestora
- Możliwość dopasowania domku do wymagań Inwestora
Cena 241 200,00 zł obejmuje
- Domek w stanie deweloperskim, całorocznym
- Drzwi zewnętrzne, drzwi wewnętrzne, okna, okiennice, okna obustronnie białe, drzwi zewnętrzne brązowe
- Schodki młynarskie
- Dwukrotne malowanie oraz impregnacja preparatem marki Drewnochron
- Krycie dachu membraną dachową oraz gontem bitumicznym marki Iko/Technonicol
- Rynny wraz z rurami spustowymi (brązowe)
- Podłogę pomalowaną na ten sam kolor co elewacja
- Izolację termiczną (ocieplenie) podłogi
- Izolację termiczną (ocieplenie) ścian
- Izolację termiczną (ocieplenie) dachu
- Instalację elektryczną wraz z gniazdkami
- Instalację hydrauliczną wraz z bojlerem
- Instalację grzewczą (grzejniki elektryczne)
- Transport i montaż na terenie całego kraju
- Prewencyjny system zabezpieczenia – atrapę kamery CCTV oraz tabliczkę ostrzegawczą „obiekt monitorowany”
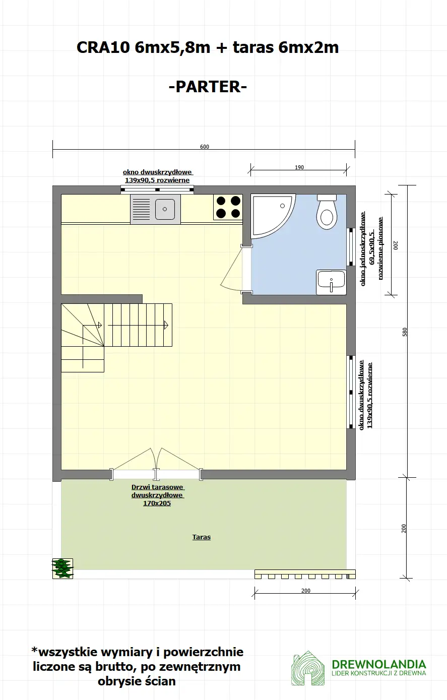
Specyfikacja techniczna
| Ilość łazienek | 1 |
| Ilość sypialni | 1 |
| Powierzchnia tarasu | 12m2 |
| Powierzchnia domku | 35 m² |
| antresola | Tak |
Dodatkowe informacje
| Standard wykonania | Deweloperski, całoroczny |
| Technologia wykonania | szkieletowa kanadyjska |
| Gatunek drewna | Sosna i świerk |
| Standard drewna | Konstrukcyjne klasy C24 suszone komorowo, kluczowe elementy (słupy tarasowe, wieniec) wykonane z drewna KVH zapobiegającego procesowi pękania i odkształcania |
| Wymiar domku | 6m x 5,8m (35 m2, mierzone po obrysie jego podstawy) |
| Powierzchnia zabudowy | 35 m2 |
| Wysokość całkowita | ok. 620 cm |
| Wysokość ścian na parterze | 250 cm |
| Parter | Otwarta przestrzeń ze schodami na antresolę oraz wydzieloną łazienką |
| Rodzaj poddasza | Antresola |
| Taras | 2m x 6m |
| Stolarka | 1 x okna PCV jednoskrzydłowe na parterze, 2 x okno PCV dwuskrzydłowe, witryna PCV na ścianie frontowej na antresoli, 1 x drzwi drewniane wewnętrzne, podwójne drzwi tarasowe PCV |
| Szkielet ścian | Kantówka 10cm x 4cm |
| Izolacja termiczna (ocieplenie) | Podłoga: wełna mineralna 10cm, ściany: wełna mineralna 20cm, dach: wełna mineralna 25cm |
| Powierzchnie izolowane (ocieplane) | Podłoga, ściany, dach |
| Rodzaj deskowania | Pióro-wpust |
| Grubość desek na dachu/elewacji/podłodze | 20mm |
| Wykończenie wewnętrzne ścian | Boazeria drewniana |
| Malowanie i impregnacja | 2 warstwy – bezbarwny podkład + preparat marki Drewnochron w wybranym kolorze – wzornik „kolory dla drewna STANDARD” |
| Pokrycie dachu | deskowanie, membrana dachowa oraz gont bitumiczny w wybranym kolorze – wzornik „pokrycia dachu STANDARD”) |
| Grubość ściany | 23,3 cm |
| Instalacje | Elektryczna (25 punktów elektrycznych), hydrauliczna (4 punkty) |
Dodatkowe opcje i możliwości
Wzorniki kolorów i materiałów

Wiśnia japońska
Drewnochron Impregnat Extra

Tik
Drewnochron Impregnat Extra

Palisander średni
Drewnochron Impregnat Extra

Orzech ciemny
Drewnochron Impregnat Extra

Dąb
Drewnochron Impregnat Extra

Cedr
Drewnochron Impregnat Extra
Opcje produktu
Ogrzewanie podłogowe foliami grzewczymi
Przedłużenie gwarancji do 36 miesięcy
o szczegóły pytaj handlowców
Przedłużenie gwarancji do 48 miesięcy
o szczegóły pytaj handlowców
Skontaktuj się z nami w sprawie opcji
Nasze produkty można dostosować do indywidualnych potrzeb. Skontaktuj się z naszymi doradcami, aby omówić dostępne opcje i uzyskać wycenę.
Realizacje tego produktu
Masz pytania?
Skontaktuj się z nami!
Podobne produkty

Domek mieszkalny całoroczny CRP4 PLUS - WT 2021 – 35 m²

Domek mieszkalny całoroczny CRP6 PLUS - WT 2021 – 35 m²

Domek mieszkalny całoroczny CRA7 PLUS - WT2021- 35 m²

Domek mieszkalny całoroczny CRP7 PLUS - WT 2021 – 35 m²
Co mówią o nas klienci?
Blog
Poznaj najważniejsze informacje o drewnie, pielęgnacji i bezpieczeństwie naszych drewnianych domków od Drewnolandi



