Porównaj produkty Drewnolandia - nowoczesne stodoły i domy drewniane do 70m², wykonane w technologii szkieletu drewnianego. Nie wymagają pozwolenia na budowę.

| Parametr | Dom mieszkalny całoroczny DREWNOLANDIA V2 - WT 2021 |
|---|---|
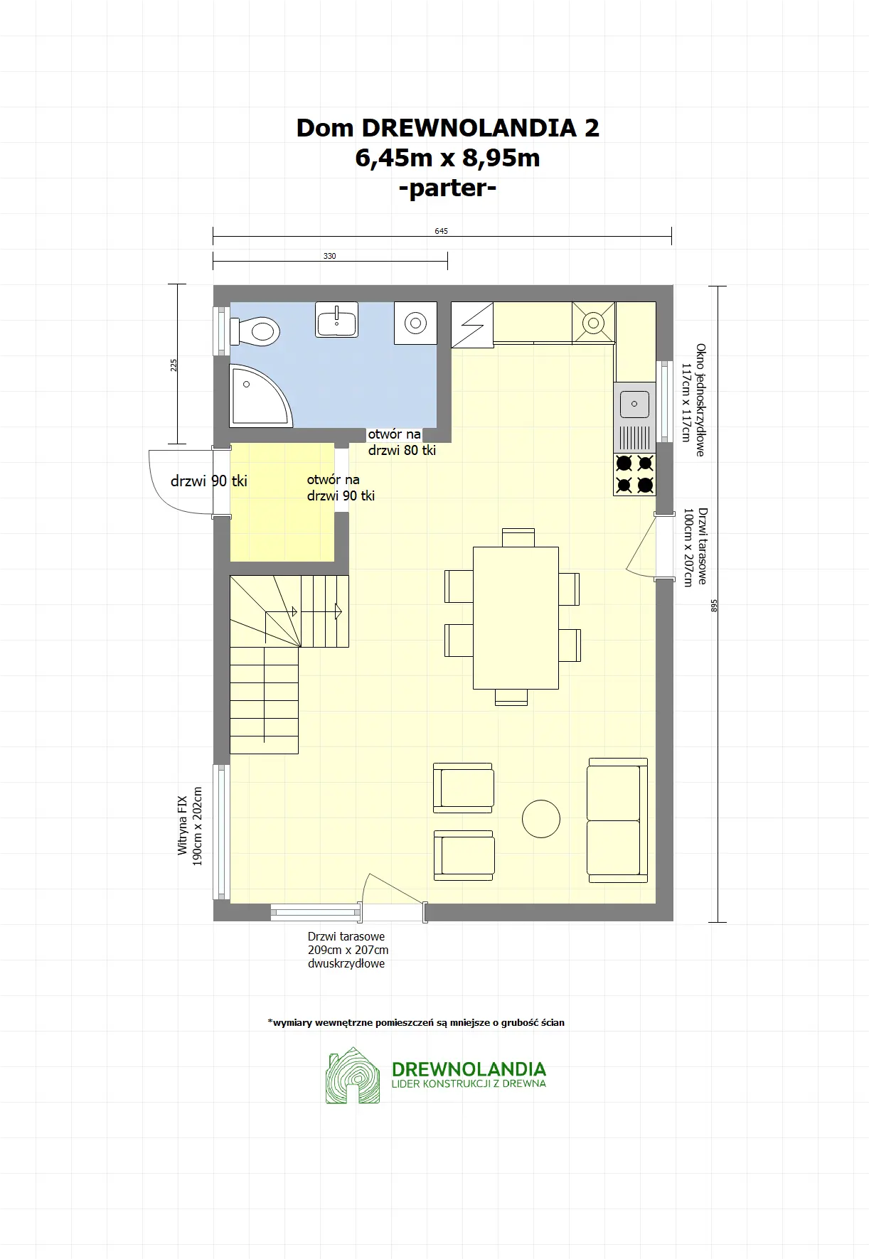
| Ilość łazienek | 1 |
| Ścianka kolankowa | 100 |
| Ilość sypialni | 5 |
| Powierzchnia domku | 90 |
| poddasze | Tak |


